Laboratorio in vendita

Torino, Via San Domenico - Valdocco
€ 75.000
3 locali 3 locali
88 Mq 88 Mq
1 bagno 1 bagno

Laboratorio in vendita

Torino, Via San Domenico - Valdocco

Descrizione annuncio

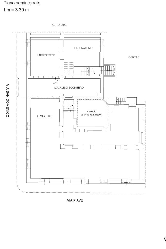
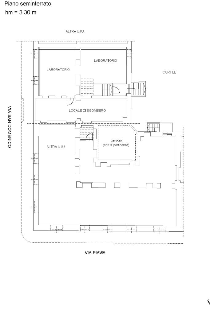
Nel cuore del quartiere Valdocco a Torino, proponiamo un laboratorio in vendita, ideale per chi cerca uno spazio versatile e funzionale. Situato al piano seminterrato di un edificio costruito nel 1950, questo immobile offre una superficie di 88 mq circa, perfetta per ospitare diverse attività artigianali o creative. La disposizione interna consente di organizzare l'ambiente secondo le proprie esigenze, garantendo un'ottima fruibilità degli spazi. La posizione strategica nel quartiere permette di beneficiare della vicinanza ai principali servizi e collegamenti della città, rendendo questo laboratorio una soluzione pratica per chi desidera operare in un contesto urbano dinamico. L'immobile rappresenta un'opportunità interessante per chi è alla ricerca di un luogo dove sviluppare il proprio progetto professionale in una zona storica e ben collegata di Torino.

Per informazioni contattare:

0110744794 oppure 3758079057

Mostra tutto

Nelle vicinanze

Trasporto pubblico Trasporto pubblico
XVIII Dicembre
XVIII Dicembre
700 m
Principi D'Acaja
Principi D'Acaja
920 m
stazione di Torino Porta Susa
stazione di Torino Porta Susa
950 m
Torino Dora GTT
Torino Dora GTT
1,6 Km
Rondò Forca
Rondò Forca
310 m
Ricariche auto elettriche Ricariche auto elettriche
evway TO Arbarello
280 m
evway TO Statuto
360 m
Bluetorino Porta Palatina
660 m
evway TO Porta Palatina
660 m
Bluetorino Teatro Alfieri
710 m
Scuole Scuole
Collegio Carlo Alberto
250 m
Liceo Scientifico A. Volta
400 m
Istituto Professionale Statale per i Servizi della Pubblicità Albe Steiner
400 m
Istituto Istruzione Superiore "Bosso-Monti"-succursale
410 m
La Palestra del Cibo - Scuola di Cucina
440 m
Farmacia Farmacia
Farmacia
130 m
Farmacia Bosio
270 m
Comunale 43 - Afc
300 m
Almasio SNC
350 m
Farmacia Anglesio
490 m
Ospedali Ospedali
Ospedale Oftalmico
500 m
Clinica Fornaca di Sessant
1,3 Km
Ospedale Maria Adelaide
1,4 Km
Ospedale Maria Vittoria
1,7 Km
Presidio San Giovanni Antica Sede
1,7 Km
Supermercati Supermercati
Pam
100 m
Pam local
290 m
Etnic Market
520 m
Carrefour Market
760 m
Picard
780 m
Negozi Negozi
Delper
130 m
Menietti dal 1911
210 m
Carrefour Express
210 m
Ël Formagé - F.lli Aragno
230 m
Tan Thanh
350 m
Bar Bar
Smile Tree
190 m
smile tree
190 m
Lobelix
200 m
Bar Rondò
340 m
Arancia a Mezzanotte
350 m
Ristoranti Ristoranti
Kokoroya
50 m
Ramen-Ya Luca
110 m
Le Fanfaron Bistrot
120 m
Trattoria caprese
120 m
La Taverna Dei Mercanti
130 m
Mostra tutto

Caratteristiche

Rif.:
61105390
Piano:
Seminterrato di 5 con ascensore
Totale piani:
5
Condizionamento:
Predisposizione impianto
Ascensore:
Riscaldamento:
Centralizzato
Mostra tutto
Prezzo Prezzo
€ 75.000
Rata mutuo Rata mutuo
€ 354 / mese
Spese annue Spese annue
€ 350
Proponi il tuo prezzoProponi il tuo prezzo

Classe Energetica

E
E
E
E
E
E
E
E
E
Anno di costruzione:
1950
Riscaldamento:
Centralizzato
Tipo impianto:
A radiatori
Tipo alimentazione:
Metano

Ti interessa visionare l'immobile?

Fissa un appuntamento  Fissa un appuntamento

Richiedi informazioni

Clicca su Leggi per aprire l'informativa
* Questi campi sono obbligatori

Calcola il tuo mutuo

Semplice e senza impegno
Anticipo

( % )
Mutuo

( % )

pochi semplici passi

inserisci i tuoi dati
Questionario completato
Grazie per aver richiesto un appuntamento senza impegno con un nostro Consulente del Credito e Assicurativo.

Hai inserito correttamente tutti i dati necessari e a breve riceverai una e-mail con un link da convalidare per inviare i tuoi dati.
Affiliato
Progetto Sviluppo Immobiliare Srl
Via Mazzini, 25 10122 Torino (TO)

Il nostro staff


  • Sonia Bennardo
    Affiliata

  • Giacomo Bausano
    Collaboratore

  • Daniele Nuzzo
    Responsabile

  • Antonio Princi
    Responsabile

  • Chaimaa Salmi
    Coordinatrice

  • Federico Aleati
    Affiliato
Via Mazzini, 25 10122 Torino (TO)
Zona: Torino Centro - Gran Madre - Superga - Vanchiglia
Mostra su mappa
Orari: Lunedì - Venerdi 9.00 - 12.30 / 15.00 - 20.30 Sabato 9.00 - 12.30 / 15.00 - 18.00
Affiliato
Progetto Sviluppo Immobiliare Srl
Via Mazzini, 25 10122 Torino (TO)

2026 Tecnocasa Franchising S.p.A. - P. IVA 08365160152 - Via Monte Bianco 60/A 20089 Rozzano (MI). Ogni agenzia ha un proprio titolare ed è autonoma. Privacy policy | Policy utilizzo | Cookie policy